
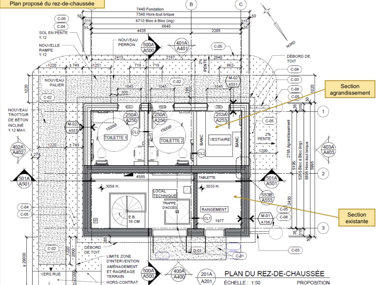
Un nouveau bloc sanitaire sera aménagé cette année au parc de quartier Place-Portneuf.
Un appel d’offres pour l’exécution des travaux d’agrandissement du bâtiment existant a été lancé vendredi dernier.
Cliquez sur les images pour agrandir…



Cette nouvelle installation comprendra deux toilettes et un vestiaire.
Ce projet s’inscrit dans la volonté d’améliorer les infrastructures de proximité et d’offrir un milieu de vie plus accueillant et fonctionnel pour toutes les familles du secteur.
Ce dossier est porté par mon collègue Jean Simard, conseiller du District 2 (Portneuf) depuis quelque temps.
Source: VSAD.ca – DDM – Avis public – 2 mai 2025

