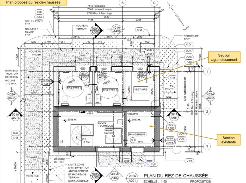
Parc Place-Portneuf – Contrat confirmé pour la construction d’un nouveau bloc sanitaire

Un nouveau bloc sanitaire sera aménagé au parc Place-Portneuf.

Le contrat pour l’exécution des travaux d’agrandissement du bâtiment existant a été confirmé par le Conseil (séance du 3 juillet).

Les travaux devront être terminés au plus tard le 31 octobre 2025.

Cliquez sur les images pour agrandir…

Cette nouvelle installation comprendra deux toilettes, un vestiaire et du rangement pour les activités organisées au parc.

Ce projet s’inscrit dans la volonté d’améliorer les infrastructures de proximité et d’offrir un milieu de vie plus accueillant et fonctionnel pour toutes les familles du secteur.

Ce dossier est porté par mon collègue Jean Simard, conseiller du District 2 (Portneuf) depuis quelque temps.

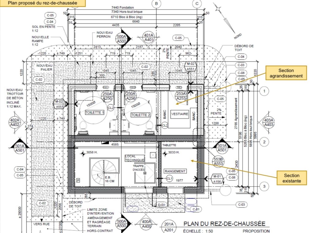
Parc Place-Portneuf – Nouveau bloc sanitaire

Un nouveau bloc sanitaire sera aménagé cette année au parc de quartier Place-Portneuf.

Un appel d’offres pour l’exécution des travaux d’agrandissement du bâtiment existant a été lancé vendredi dernier.

Cliquez sur les images pour agrandir…

Cette nouvelle installation comprendra deux toilettes et un vestiaire.

Ce projet s’inscrit dans la volonté d’améliorer les infrastructures de proximité et d’offrir un milieu de vie plus accueillant et fonctionnel pour toutes les familles du secteur.

Ce dossier est porté par mon collègue Jean Simard, conseiller du District 2 (Portneuf) depuis quelque temps.

Source: VSAD.ca – DDM – Avis public – 2 mai 2025

Ouverture graduelle des patinoires

Merci aux équipes du service des bâtiments, parcs et espaces verts!

Consulter l’outil en ligne pour connaître les conditions de glace, les services offerts et les heures d’ouverture:

https://sites.google.com/view/vsadpatinoires/conditions.


Liste des sites

  • Centre Delphis-Marois (300, rue de l’Entrain):
    • Une surface glacée éclairée avec bandes;
    • Une surface éclairée sans bande;
  • Parc Place Portneuf:
    • Une surface glacée éclairée avec bandes;
  • Complexe sportif multifonctionnel (230 route de Fossambault):
    • Une surface glacée extérieure éclairée avec bandes;
  • Parc Richard-Gosselin (place du Domaine):
    • Une surface glacée éclairée avec bandes;
  • Centre sociorécréatif les Bocages (4850, rue du Sourcin):
    • Une surface glacée éclairée avec bandes;
    • Une surface glacée éclairée sans bande.

Source: VSAD.ca

Patinoires – On se prépare !

Les préparatifs vont bon train pour la prochaine saison hivernale! Merci aux équipes du service des bâtiments, parcs et espaces verts.

Liste des sites

  • Centre Delphis-Marois (300, rue de l’Entrain):
    • Une surface glacée éclairée avec bandes;
    • Une surface éclairée sans bande;
  • Parc Place Portneuf:
    • Une surface glacée éclairée avec bandes;
  • Complexe sportif multifonctionnel (230 route de Fossambault):
    • Une surface glacée extérieure éclairée avec bandes;
  • Parc Richard-Gosselin (place du Domaine):
    • Une surface glacée éclairée avec bandes;
  • Centre sociorécréatif les Bocages (4850, rue du Sourcin):
    • Une surface glacée éclairée avec bandes;
    • Une surface glacée éclairée sans bande.

Consulter le site Internet de la Ville au VSAD.ca et les pages Facebook de la Ville (@VSADOfficiel) et du Service des loisirs, culture et vie communautaire (@Les Augustinois actifs) pour plus d’informations et connaître toutes les règles.

Source: VSAD.ca

Des ressources et infrastructures de qualité pour rester actifs et en forme tout au long de l’année

Aujourd’hui, 7 avril, c’est la Journée mondiale de la santé!

«Une communauté en santé est une communauté prospère.»

Le sport et l’activité physique sont des éléments essentiels d’un mode de vie sain. Ainsi, la Ville de Saint-Augustin-de-Desmaures met à la disposition de ses citoyens des ressources et des infrastructures de qualité pour rester actifs et en forme tout au long de l’année.

Cliquez sur les photos pour agrandir…


Investissements

Des investissements importants sont prévus au cours des 5 prochaines années dans les parcs, au niveau des bâtiments et équipements sportifs, de même que dans les déplacements actifs (trottoirs, sentiers, pistes cyclables).

Voici quelques projets qui seront réalisés en 2024:

  • Aménagement du parc de la Falaise – escalier (0,6 M$);
  • Réfection des sentiers du CSR Delphis-Marois (0,74 M$);
  • Réfection du terrain de baseball (synthétique) du CSR Delphis-Marois – bas (1,4 M$);
  • Remplacement des jeux d’eau (1,6 M$);
  • Réalisations des aménagements accessoires aux aires de planches à roulettes du parc du Millénaire (1 M$);
  • Aménagement d’une piste cyclable sur le chemin de la Butte (2,75 M$);
  • Réfection des infrastructures de la route Racette – route, trottoirs, pistes cyclables (10,2 M$);
  • Travaux d’améliorations de la sécurité routière et des déplacements actifs (1 M$);
  • Mise à niveau des parcs (0,65 M$);
  • Construction de trottoirs sur les rues du Trèfle et Pierre-Couture.

Il ne manque que le froid…

Cliquez sur les photos pour agrandir…

Liste des patinoires extérieures qui seront en opération cette année

  • Centre Delphis-Marois (300, rue de l’Entrain);
  • Parc Place Portneuf;
  • Complexe sportif multifonctionnel (230 route de Fossambault);
  • Parc Richard-Gosselin (place du Domaine);
  • Centre sociorécréatif les Bocages (4850, rue du Sourcin).

Consulter le site Internet de la Ville au VSAD.ca et les pages Facebook de la Ville (@VSADOfficiel) et du Service des loisirs, culture et vie communautaire (@Les Augustinois actifs) pour connaître les dates d’ouverture et toutes les règles.

Merci à nos équipes!

Bonne saison!

Source: VSAD.ca

Info-Travaux: Échéancier et entraves

Carte travaux 2023 Saint-Augustin
Cliquez sur les cartes pour agrandir… (légende)

Plusieurs travaux sont déjà en cours et d’autres débuteront sous peu. En 2023, les investissements prévus sont de 41,8 millions $. Le tout, payé comptant. Sans emprunter.

Pour toutes les informations concernant les échéanciers et entraves, consultez la section «Info-travaux» sur le site de la ville (cliquez sur ce lien).

Recevez des alertes par texto et/ou par courriel vous informant des entraves (cliquez sur ce lien).


Liste des projets en cours ou à venir:

  • Le remplacement de quatre installations de jeux d’eau (CSR Delphis-Marois, CSR Les Bocages, parc Place-Portneuf et parc des Bosquets): 0,6M$;
  • La réfection du terrain de baseball au CSR Delphis-Marois: 0,65M$;
  • La réfection du stationnement et des sentiers au CSR Delphis-Marois: 0,63M$;
  • Le remplacement de l’éclairage de différents terrains sportifs: 0,4M$;
  • La mise à niveau des parcs (incluant le parc de la Falaise): 0,25M$;
  • La réfection de la toiture de la bibliothèque Alain-Grandbois: 0,97M$;
  • L’acquisition d’un équipement mobile bibliothèque et évènements (Bibliobus): 0,3M$
  • L’aménagement d’une piste cyclable sur le chemin de la Butte: 2,75M$;
  • Le réaménagement des intersections des routes Tessier/138 et de Fossambault/138: 3,52M$ (2023-2024);
  • La réfection des infrastructures de la route Racette: 7,1M$;
  • La réfection du rang des Mines et du chemin Girard : 3,85M$ (projet remis en 2024);
  • L’élargissement d’un segment du chemin du lac et aménagement de bandes cyclables (Route Verte): 0,6M$;
  • Autres travaux liés à l’amélioration des déplacements actifs et à la sécurité routière: 0,38M$;
  • Les travaux de réfection de pavage sur diverses rues du territoire: 4M$;
  • La phase 1 du projet de réaménagement du garage municipal et de l’hôtel de ville: 9M$;
  • L’aménagement des terrains du Centre Communautaire Multifonctionnel Secteur Est (CCMSE) – pickleball, scène extérieur, espace publique, butte de glisse, etc: 2,25M$;
  • Le réaménagement de la Maison des jeunes au CSR Les Bocages: 0,3M$;
  • L’aménagement d’une piste à vagues naturelles pour vélos au CSR Les Bocages: 0,2M$;
  • La mise à niveau des marais épurateurs du lac Saint-Augustin: 0,5M$;
  • L’acquisition et l’installation de panneaux à messages variables: 0,28M$;
  • Le renouvellement de la flotte de véhicules: 1,1 M$;
  • Autres projets divers: 2,2 M$.

«D’ici 2026, la dette à l’ensemble sera éteinte, mais cela ne se fera pas au détriment de nos infrastructures. Nous continuons d’entretenir et d’améliorer tous nos équipements en investissant des sommes importantes dans nos routes, réseaux, parcs, bâtiments, véhicules et autres. Le tout, toujours payé comptant, de façon à ne pas regonfler notre dette.» – Sylvain Juneau, Maire

Les investissements projetés au Plan quinquennal d’immobilisations (PQI) sont de:

  • 41,8 M$ en 2023;
  • 16,9 M$ en 2024;
  • 18 M$ en 2025;
  • 17 M$ en 2026;
  • 9,8 M$ en 2027.

Pour plus de détails sur le budget 2023 et les investissements 2023-2027, cliquez sur ce lien.

Info-Travaux: Investissements de 41,8 M$ en 2023

Consultez la section officielle «Info-travaux» de la ville pour connaître les entraves actuelles. Soyez informés en vous abonnant aux alertes du «Portail Citoyen».

Carte travaux 2023 Saint-Augustin
Cliquez sur les cartes pour agrandir… (légende)

Les investissements prévus sont de 41,8 millions $ en 2023.

Le tout, payé comptant. Sans emprunter.

Voici la liste des travaux qui seront réalisés:

  • Le remplacement de quatre installations de jeux d’eau (CSR Delphis-Marois, CSR Les Bocages, parc Place-Portneuf et parc des Bosquets): 0,6M$;
  • La réfection du terrain de baseball au CSR Delphis-Marois: 0,65M$;
  • La réfection du stationnement et des sentiers au CSR Delphis-Marois: 0,63M$;
  • Le remplacement de l’éclairage de différents terrains sportifs: 0,4M$;
  • La mise à niveau des parcs (incluant le parc de la Falaise): 0,25M$;
  • La réfection de la toiture de la bibliothèque Alain-Grandbois: 0,97M$;
  • L’acquisition d’un équipement mobile bibliothèque et évènements (Bibliobus): 0,3M$
  • L’aménagement d’une piste cyclable sur le chemin de la Butte: 2,75M$;
  • Le réaménagement des intersections des routes Tessier/138 et de Fossambault/138: 3,52M$ (2023-2024);
  • La réfection des infrastructures de la route Racette: 7,1M$ (projet remis au printemps 2024);
  • La réfection du rang des Mines et du chemin Girard : 3,85M$ (projet remis en 2024);
  • L’élargissement d’un segment du chemin du lac et aménagement de bandes cyclables (Route Verte): 0,6M$;
  • Autres travaux liés à l’amélioration des déplacements actifs et à la sécurité routière: 0,38M$;
  • Les travaux de réfection de pavage sur diverses rues du territoire: 4M$;
  • La phase 1 du projet de réaménagement du garage municipal et de l’hôtel de ville: 9M$;
  • L’aménagement des terrains du Centre Communautaire Multifonctionnel Secteur Est (CCMSE) – pickleball, scène extérieur, espace publique, butte de glisse, etc: 2,25M$;
  • Le réaménagement de la Maison des jeunes au CSR Les Bocages: 0,3M$;
  • L’aménagement d’une piste à vagues naturelles pour vélos au CSR Les Bocages: 0,2M$;
  • La mise à niveau des marais épurateurs du lac Saint-Augustin: 0,5M$;
  • L’acquisition et l’installation de panneaux à messages variables: 0,28M$;
  • Le renouvellement de la flotte de véhicules: 1,1 M$;
  • Autres projets divers: 2,2 M$.

«D’ici 2026, la dette à l’ensemble sera éteinte, mais cela ne se fera pas au détriment de nos infrastructures. Nous continuons d’entretenir et d’améliorer tous nos équipements en investissant des sommes importantes dans nos routes, réseaux, parcs, bâtiments, véhicules et autres. Le tout, toujours payé comptant, de façon à ne pas regonfler notre dette.» – Sylvain Juneau, Maire

Les investissements projetés au Plan quinquennal d’immobilisations (PQI) sont de:

  • 41,8 M$ en 2023;
  • 16,9 M$ en 2024;
  • 18 M$ en 2025;
  • 17 M$ en 2026;
  • 9,8 M$ en 2027.

Pour plus de détails sur le budget 2023 et les investissements 2023-2027, cliquez sur ce lien.

Investissements majeurs en 2023 – Plusieurs chantiers en préparation…

Cliquez sur les cartes pour agrandir… (légende)

Les investissements projetés sont de 41,8 millions $ en 2023.

Le tout, payé comptant. Sans emprunter.

Voici la liste des travaux qui devraient être réalisés cette année:

  • Le remplacement de quatre installations de jeux d’eau (CSR Delphis-Marois, CSR Les Bocages, parc Place-Portneuf et parc des Bosquets): 0,6M$;
  • La réfection du terrain de baseball au CSR Delphis-Marois: 0,65M$;
  • La réfection du stationnement et des sentiers au CSR Delphis-Marois: 0,63M$;
  • Le remplacement de l’éclairage de différents terrains sportifs: 0,4M$;
  • La mise à niveau des parcs (incluant le parc de la Falaise): 0,25M$;
  • La réfection de la toiture de la bibliothèque Alain-Grandbois: 0,97M$;
  • L’acquisition d’un équipement mobile bibliothèque et évènements (Bibliobus): 0,3M$
  • L’aménagement d’une piste cyclable sur le chemin de la Butte: 2,75M$;
  • Le réaménagement des intersections des routes Tessier/138 et de Fossambault/138: 3,52M$;
  • La réfection des infrastructures de la route Racette: 7,1M$;
  • La réfection du rang des Mines et du chemin Girard : 3,85M$;
  • L’élargissement d’un segment du chemin du lac et aménagement de bandes cyclables (Route Verte): 0,6M$;
  • Autres travaux liés à l’amélioration des déplacements actifs et à la sécurité routière: 0,38M$;
  • Les travaux de réfection de pavage sur diverses rues du territoire: 4M$;
  • La phase 1 du projet de réaménagement du garage municipal et de l’hôtel de ville: 9M$;
  • L’aménagement des terrains du Centre Communautaire Multifonctionnel Secteur Est (CCMSE) – pickleball, scène extérieur, espace publique, butte de glisse, etc: 2,25M$;
  • Le réaménagement de la Maison des jeunes au CSR Les Bocages: 0,3M$;
  • L’aménagement d’une piste à vagues naturelles pour vélos au CSR Les Bocages: 0,2M$;
  • La mise à niveau des marais épurateurs du lac Saint-Augustin: 0,5M$;
  • L’acquisition et l’installation de panneaux à messages variables: 0,28M$;
  • Le renouvellement de la flotte de véhicules: 1,1 M$;
  • Autres projets divers: 2,2 M$.

«D’ici 2026, la dette à l’ensemble sera éteinte, mais cela ne se fera pas au détriment de nos infrastructures. Nous continuons d’entretenir et d’améliorer tous nos équipements en investissant des sommes importantes dans nos routes, réseaux, parcs, bâtiments, véhicules et autres. Le tout, toujours payé comptant, de façon à ne pas regonfler notre dette.» – Sylvain Juneau, Maire

Les investissements projetés au Plan quinquennal d’immobilisations (PQI) sont de:

  • 41,8 M$ en 2023;
  • 16,9 M$ en 2024;
  • 18 M$ en 2025;
  • 17 M$ en 2026;
  • 9,8 M$ en 2027.

Pour plus de détails sur le budget 2023 et les investissements 2023-2027, cliquez sur ce lien.

Consultez la section officielle «Info-travaux» de la ville pour connaître les entraves actuelles.

Soyez informés en vous abonnant aux alertes du «Portail Citoyen».